Listing provided courtesy of Arthur Mangubat of HomeSmart Realty West. Last updated 2026-02-04 09:10:45.000000. Listing information © 2026 CRMLS.
Asking Price: $1,099,000
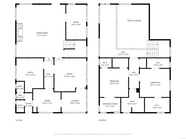
226 Rampart, Los Angeles CA 90057
Community: 106 - Los Angeles
Status: Pending
This Single Family Residence property was built in 1911 and is priced at $1,099,000. Please see the additional details below.
Welcome to this one-of-a-kind property showcasing detailed craftsmanship in a prime Rampart Boulevard location. The 4-bedroom + multipurpose room, 2bath home boasts a unique set up. The first floor is used for Life and Leisure travel agency operations with 2 bedrooms at the rear, a fireplace and administration/reception area at the front. As you walk upstairs, you will see a U- shaped foyer with fine wood craftmanshift, another fire place with two additional bedrooms just beyond it. The home includes a basement, offering flexibility to convert it into a gym or additional living space. Zoned LAR4,one of the highest density residential zone that offers excellent investment potentials. There is ample space at the back for parking or for adding an ADU. With a little creativity, this property can generate multiple income opportunities. According to the owner, the home was once owned by a well-known actress years ago.




























