Listing provided courtesy of Noelle Lesinski of Harcourts Encino Inc.. Last updated 2026-02-05 09:19:25.000000. Listing information © 2026 CRMLS.
Asking Price: $12,500
1145 Longwood, Los Angeles CA 90019
Community: C16 - Mid Los Angeles
Status: Active
This Single Family Residence property was built in 1929 and is priced at $12,500. Please see the additional details below.
Welcome to 1145 S Longwood Ave, where an oversized, park-like backyard sets the tone for elevated Mid-City living. A sprawling grassy expanse, multiple lounge areas, and a spacious deck shaded by mature trees make this outdoor retreat the true showstopper, ideal for quiet mornings or weekend gatherings.
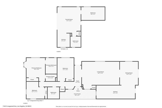
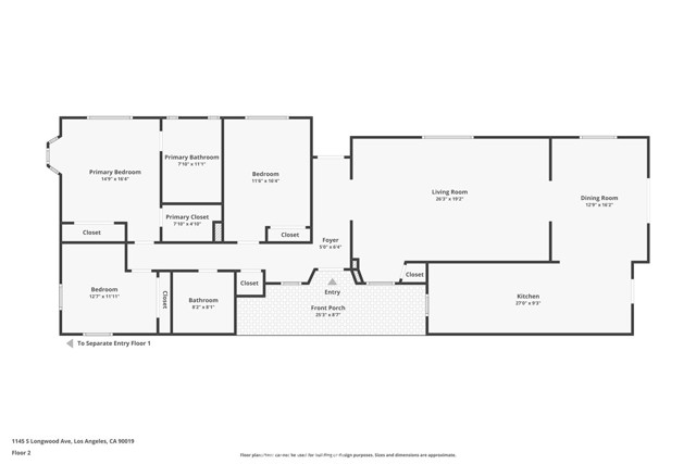
Inside, the main home features bright, open-concept living spaces with a modern kitchen outfitted in stainless steel finishes, plus 4 bedrooms and 3 stylishly updated bathrooms. The layout is exceptionally flexible, offering a private lower-level suite with its own entrance and bathroom, along with a brand-new ADU perfect for guests, work, creative pursuits, or extended stays.
Completely transformed from top to bottom, this property combines thoughtful design with rare versatility. And with its central Mid-City location, you're minutes from Miracle Mile, Hancock Park, Koreatown, and some of LA’s best restaurants, museums, and culture.
This isn’t just a rental, it’s a refined way of living.
Lease Terms Include:
12-month minimum lease (longer terms welcome)
Tenant responsible for all utilities
Security deposit required
May be available furnished for extra cost















































































