Listing provided courtesy of Yuri Huxley of Coldwell Banker Realty. Last updated 2026-05-07 08:07:15.000000. Listing information © 2026 CRMLS.
Asking Price: $389,000
215 7th #307, Los Angeles CA 90014
Community: C42 - Downtown L.A.
Status: Active
This Condominium property was built in 1911 and is priced at $389,000. Please see the additional details below.
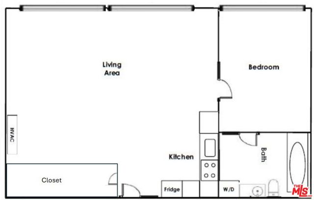
Bright south-facing 1 bed/1 bath live/work loft at the historic Bartlett Lofts. The historic building currently benefits from the Mills Act contract, for nearly 70% off property taxes annually. This south-facing loft features rare oversized windows unique to only a few units for an abundance of natural light. In true urban loft style, there are concrete floors throughout and soaring 10ft+ ceilings. The open plan living space flows seamlessly into the kitchen and there's a completely separate south facing bedroom with a huge window. The ensuite bathroom features a large soaking tub and stackable W/D unit inside. There is a powerful heating and AC unit in the living area and large storage closet near the entry. The building features limited rentable parking spaces and there are many paid monthly parking options nearby. Building amenities include 24/7 front desk security, a breathtaking nearly 360-degree rooftop deck/lounge area, and courtyard. Situated in the heart of the historic core with a Walk Score of 98, you're within a few blocks of the best of DTLA, such as Grand Central Market, Restaurant Row, Whole Foods, Ralphs, Apple Tower Theater/Store, L. A. Athletic Club, Metro Red Line subway, Per La Hotel, The Bloc, Fashion District, Disney Concert Hall, The Broad Museum, Hoxton/Proper/Freehand hotels, Grand Central Market, Corporation Food Hall, Flower Market, Sonoratown, Urban Outfitters, Kreation Organics, Broken Mouth, Holy Basil, Bottega Louie, Beelman's, Blu Jam Cafe, Buzz Wine Shop, FIGat7th, Spring Arcade, Sunday Farmers Market, The Last Bookstore, and much more.




























