Listing provided courtesy of Bill Ruane of Estate Properties. Last updated 2026-05-06 08:14:23.000000. Listing information © 2026 CRMLS.
Asking Price: $1,399,000
3211 Cattaraugus, Los Angeles CA 90034
Community: C09 - Beverlywood Vicinity
Status: Active
This Duplex property was built in 1941 and is priced at $1,399,000. Please see the additional details below.
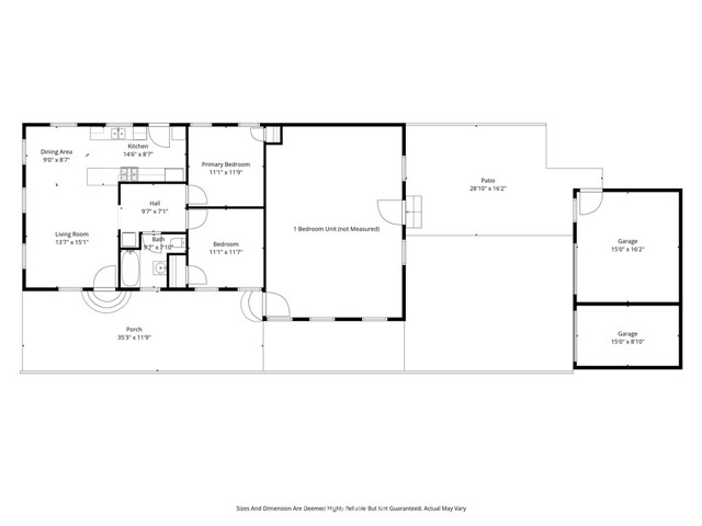
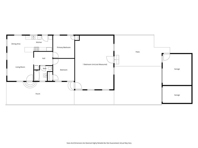
Excellent Investor Opportunity in a prime location with owner user ability! This 2-unit property sits within the Culver City Arts District and close to Helms Bakery, Sony Studios, Amazon Studios, and the Metro Line.
Both units feature bamboo floors in the living and bedroom areas, tile floor kitchens with granite countertops, gas ovens, dishwashers, in-unit washer/dryers, central heat, and window A/C units. Additionally, the units were upgraded with copper plumbing, newer electrical panels, newer windows and fresh paint.
The back unit is a 1bd/1ba home and it has its own private garage which is attached to a bonus room. The front unit is a 2bd/1ba home and is immediately available for move-in and perfect for owner user ability. It has its own parking spot adjacent to the home and a separate private garage near the rear of the property. The back of the property features plenty of open space and a sizable grass area that could be used for extra parking and/or outdoor activities and hosting. The property can be accessed by an automatic driveway gate or a private pedestrian gate equipped with a keypad.
Don’t miss this fantastic opportunity in a high-demand rental and employment hub!































