Listing provided courtesy of Jennifer Drummond of The Agency. Last updated 2026-04-05 08:07:18.000000. Listing information © 2026 CRMLS.
Asking Price: $1,195,000
620 Hawk Hill, Palm Desert CA 92211
Community: 324 - East Palm Desert
Status: Pending
This Single Family Residence property was built in 1999 and is priced at $1,195,000. Please see the additional details below.
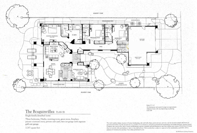
Elevated Golf & Mountain Views! Golf Membership with NO WAIT + Owned Solar! Experience the ultimate desert lifestyle in this furnished Bougainvillea 3 home, perfectly positioned above Grove #2 and #3 at Indian Ridge Country Club in Palm Desert CA. This elevated lot offers unobstructed golf and mountain views with no homes directly across--rare privacy and incredible scenery. The home makes a beautiful first impression with new pavers in the driveway, walkway, and front courtyard. The expanded elevated fairway patio features pavers, a built-in BBQ, fire feature, and multiple areas for dining, relaxing, and soaking in those panoramic views. Inside, the spacious living room includes a fireplace, bar area with wine refrigerator, and custom media built-ins. Both the living and dining rooms open to the patio for seamless indoor/outdoor entertaining. A separate sitting area/family room with built-in desk sits just off the kitchen and opens to the freshly re-designed front courtyard. The kitchen offers granite countertops and bar seating. The Primary Suite enjoys private patio access and an ensuite bath with dual vanities, large walk-in closet, shower, and separate tub. Two guest bedrooms are also ensuite, with one bathroom designed to also function as a powder room. Additional highlights include a full laundry room with storage and a 2-car plus golf cart garage with epoxy flooring and direct home access. Community pool and spa are conveniently located just a few doors away. With golf membership available without a wait, breathtaking views, owned solar, and central Indian Ridge CC location, this home offers the best of luxury desert living. Indian Ridge CC features two Arnold Palmer Signature golf courses, tennis/ pickleball facilities, a fitness center, a full-service spa, two restaurants, 38 community pools/spas & an active social calendar. Come Join the Fun!




























































