Listing provided courtesy of Gregory Terry of Compass. Last updated 2025-12-13 09:41:12.000000. Listing information © 2025 CRMLS.
Asking Price: $6,200,000
251 Park, Burlingame CA 94010
Community: 699 - Not Defined
Status: Pending
This property was built in 1940 and is priced at $6,200,000. Please see the additional details below.
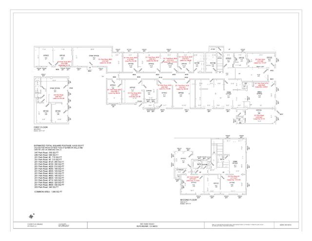
Situated in between San Francisco and the South Bay; Burlingame is uniquely postured as a mid-point centrally located in the heart of the thriving and ever evolving Silicon Valley. The strong demographics of the area have lead to robust growth of the business community, attracting very strong retail, office, life science, technology. The subject property is centered in the epicenter of Downtown and is a mere stones throw away from Burlingame Avenue. New construction surrounds the property and is driving further growth by attracting additional retail, restaurants and offices. The building offers: street retail, office suites- large and small, common area and easy access to abundant parking. The subject property has been meticulously cared for and upgraded by its current ownership with maintenance capital improvements as well as upgrades vital to the continued attraction to its constituents. Key Data Points: ± 6,630 SqFtBuilding (Per Floor Plan Visuals), ± 7,763 SqFt Parcel (Per Realist Tax Records), 13 Office Suites, 3 Retail Suites (FacingPark Road), Common Area Restrooms on First Floor, Lush, Serene Inner Courtyard Area for Common Enjoyment, MiniSplits Serving Units w/ HVAC, Abundant Short Term & Long Term Parking Surrounding the Property and much more!


























