Listing provided courtesy of Kenneth Park of Newline Realty. Last updated 2026-05-03 08:28:20.000000. Listing information © 2026 CRMLS.
Asking Price: $1,199,900
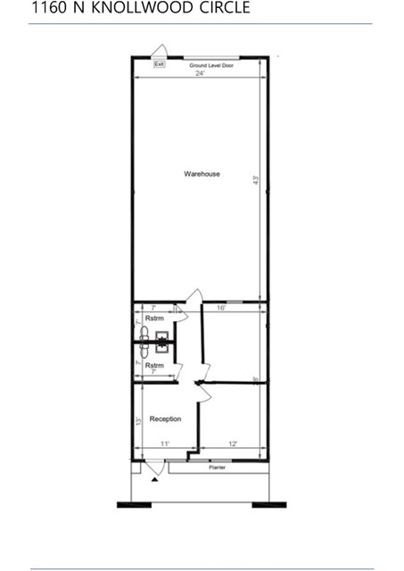
1160 Knollwood, Anaheim CA 92801
Community: 699 - Not Defined
Status: Active
This Industrial property was built in 0 and is priced at $1,199,900. Please see the additional details below.
Excellent opportunity to own a 1,787 SF industrial condominium in the professionally managed Woodland Business Park in West Anaheim. The unit is configured as warehouse with office space and features a ground-level roll-up door. Conveniently located just off the 5 and 91 Freeways, offering excellent regional accessibility. The well-maintained multi-tenant business park provides ample parking and is ideally situated near Magnolia Ave and La Palma Ave. Suitable for owner-users, small businesses, or investors. Sold As-Is. Buyer to verify all information.








