Listing provided courtesy of Sara Deskins of Compass. Last updated 2026-02-04 09:12:31.000000. Listing information © 2026 CRMLS.
Asking Price: $795,000
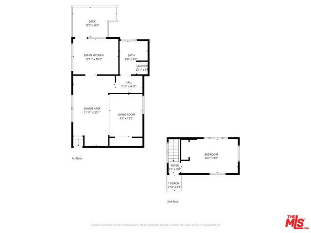
1556 Rollins, Los Angeles CA 90063
Community: ELA - East Los Angeles
Status: Active
This Single Family Residence property was built in 1926 and is priced at $795,000. Please see the additional details below.
Welcome to 1556 Rollins Drive! This home is currently being used as a multi-unit family home filled with character and nestled in the vibrant heart of City Terrace Los Angeles. This unique property offers an exceptional opportunity for both owner-users and investors alike. Built in 1926, this gem is thoughtfully designed to accommodate modern living while preserving its timeless appeal. The main unit on the upper level features 2 spacious bedrooms and a full bathroom, providing a comfortable and inviting living space. (The 2nd bedroom has been opened to the living room but can easily be closed off again if you prefer 2 true bedrooms) The kitchen is equipped with a brand-new ZLine stove, perfect for culinary enthusiasts, and opens to a bright and airy floor plan. Enjoy the hardwood style flooring that flows seamlessly throughout the living areas and in-unit laundry. The lower level hosts a separate 1-bedroom, 1-bathroom unit with its own private entrance, offering the ultimate in privacy and versatility. This unit has high ceilings and has been updated with new kitchen floors and a modern shower, making it an ideal rental space or guest suite. Both units have great natural light and benefit from upgraded plumbing and electrical systems, completed in 2013, and some newer windows that enhance energy efficiency. The home is equipped with solar panels, ensuring sustainability and cost-effectiveness. Step outside to discover a large entertainer's deck and private patio, both offering breathtaking views of the Pasadena and Angeles mountains. Whether you're hosting family gatherings or enjoying a peaceful evening under the stars, this outdoor space provides the perfect backdrop. Located near Cal State Los Angeles with easy access to the 710 and 10 freeways, near 2 railway stations (the E line to Culver City/Santa Monica and the San Bernardino line) as well as many bus stops...this property is just minutes from Downtown LA, shopping, entertainment, and fine dining. Don't miss the chance to own this extraordinary property with gorgeous and tranquil views.











































































