Listing provided courtesy of Melissa Westfall of Opendoor Brokerage Inc.. Last updated 2026-03-28 08:10:43.000000. Listing information © 2026 CRMLS.
Asking Price: $745,000
1124 Lake Park Dr, Oakley CA 94561
Community:
Status: Pending
This Single Family Residence property was built in 2006 and is priced at $745,000. Please see the additional details below.
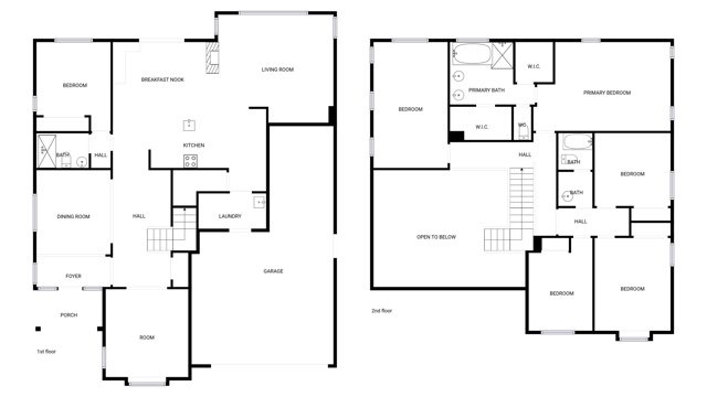
Welcome to 1124 Lake Park Dr, where elegance meets functionality. The heart of this home is a cozy fireplace, perfect for those chilly evenings. The kitchen is a chef's dream with a convenient island, an accent backsplash that adds a touch of sophistication, and all stainless steel appliances for a sleek, modern look. The primary bathroom is a sanctuary with double sinks, a separate tub and shower for ultimate relaxation. Step outside to a patio that leads to a private in-ground pool, perfect for entertaining or simply cooling off on hot summer days. The fenced-in backyard ensures privacy while you enjoy your outdoor space. The fresh interior paint gives the home a clean, refreshed look. This is a home where every detail has been thoughtfully considered.









































