Listing provided courtesy of Gregg Fletcher of Compass. Last updated 2026-03-22 08:14:40.000000. Listing information © 2026 CRMLS.
Asking Price: $399,000
1728 Capri, Palm Springs CA 92262
Community: 334 - South End Palm Springs
Status: Active Under Contract
This Condominium property was built in 1973 and is priced at $399,000. Please see the additional details below.
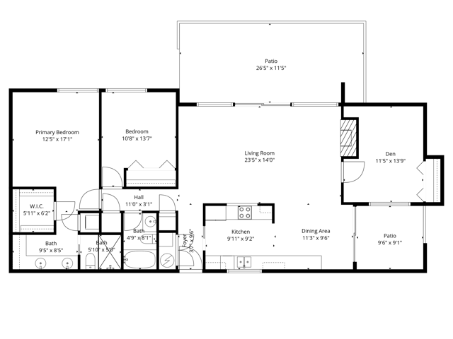
Own a piece of Palm Springs history with this rare opportunity to unlock a new chapter for a classic Hugh M. Kaptur designed mid-century residence. Located in the peaceful, scenic community of Casa Sonora, this three-bedroom, two-bath condominium perfectly preserves the clean architectural lines and ''desert organic'' aesthetic that define Kaptur's iconic style. Inside, the spacious open layout is framed by classic post-and-beam construction, soaring volume ceilings, and a sculptural fireplace. Expansive walls of glass create a seamless transition to a generous private patio, offering a front-row seat to the manicured grounds and scenic mountain views. While the kitchen and baths have been updated, they remain true to the original design, providing a compelling canvas. Authentic tile floors run throughout, grounding the home in timeless desert character. Functional features include a one-car garage, in-unit laundry, and ample cabinets and storage. Unlike recently renovated units commanding premium pricing, this home invites vision -- and rewards it. Residents enjoy access to the resort-style amenities including pool, spa, tennis and pickleball courts, all just steps away. Located within walking distance to nearby shopping and dining and only minutes from downtown Palm Springs, this residence combines architectural pedigree, premier positioning, and outstanding potential.














































