Listing provided courtesy of Kimberly Smith of Link Brokerages Inc. Last updated 2026-03-21 08:24:18.000000. Listing information © 2026 CRMLS.
Asking Price: $620,000
1515 E Walnut Way, Long Beach CA 90813
Community: 9 - Poly High
Status: Active
This Single Family Residence property was built in 1929 and is priced at $620,000. Please see the additional details below.
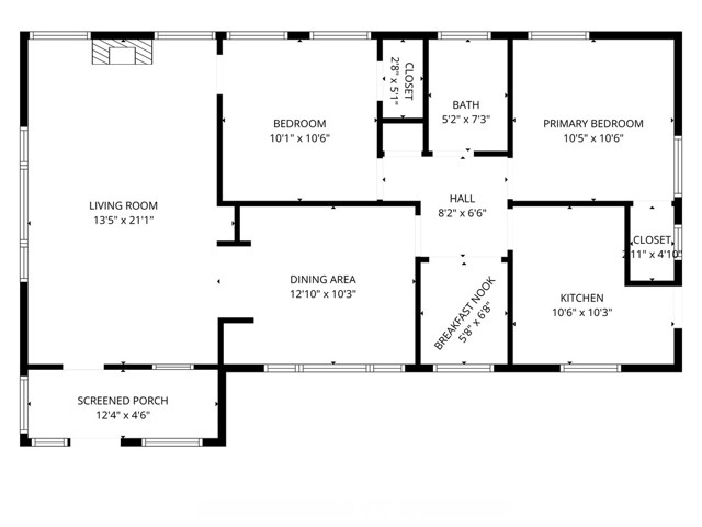
Welcome to 1515 E Walnut Way, a charming residence located in the heart of Long Beach. This property offers a fantastic opportunity for new and first time homeowners, combining classic Southern California character with convenient access to the city’s vibrant amenities.
Situated on a quiet residential street, the home features a functional layout designed for comfortable living. Natural light fills the interior spaces, creating a warm and inviting atmosphere throughout the living areas. The property offers well-proportioned bedrooms, a comfortable living room ideal for relaxing or entertaining, and a kitchen with ample potential for customization and modernization.
Located just minutes from downtown Long Beach, residents enjoy easy access to shopping, dining, local parks, and major transportation corridors. The home is also conveniently close to beaches, cultural attractions, and employment centers, making it an ideal location for both lifestyle and long-term investment potential.
Whether you're looking for a primary residence, a rental property, or a renovation project, 1515 E Walnut Way represents a strong opportunity in one of Long Beach’s established neighborhoods.
































