Listing provided courtesy of Wendy Morley of Pinnacle Estate Properties, Inc.. Last updated 2026-03-18 08:16:37.000000. Listing information © 2026 CRMLS.
Asking Price: $149,000
5150 Los Angeles #52, Simi Valley CA 93063
Community: SVE - East Simi
Status: Active
This Mobile Home property was built in 1968 and is priced at $149,000. Please see the additional details below.
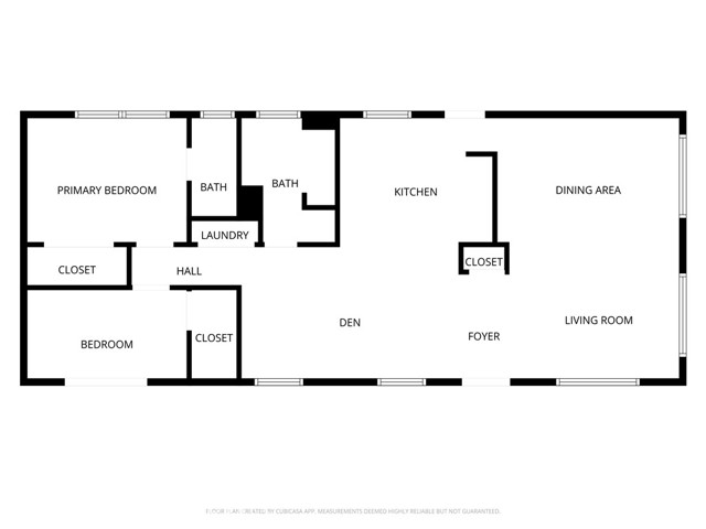
Beautifully updated and move-in ready mobile home featuring quality upgrades throughout, situated on a large lot with a convenient storage shed. This home also includes an indoor washer and dryer, plus a refrigerator that stays, making it truly turnkey.
Both bathrooms have been fully refreshed with new vanities, countertops, sinks, faucets, and toilets, offering a clean and modern feel. The home showcases all new flooring and carpet, complemented by fresh interior and exterior paint for a bright, inviting atmosphere. Oversized closets provide ample storage, while the covered patio creates a perfect space for relaxing or entertaining.
Additional improvements include new interior lighting, baseboards throughout, a new garbage disposal, and updated forced air thermostat and filters for added comfort and efficiency. The water heater was installed just two years ago, providing peace of mind. New screens and fresh front landscaping enhance both functionality and curb appeal.
This well-maintained home offers a perfect blend of space, style, and comfort—ready for its next owner to enjoy.



































