Listing provided courtesy of Jorge Ramirez of Genesis Real Estate. Last updated 2026-04-11 08:16:13.000000. Listing information © 2026 CRMLS.
Asking Price: $576,000
1734 Casa Grande St, Benicia CA 94510
Community:
Status: Active
This Townhouse property was built in 1990 and is priced at $576,000. Please see the additional details below.
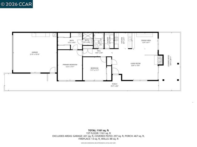
Discover the perfect blend of space, comfort, and convenience at 1734 Casagrande St in Benicia. This desirable single-level end-unit condo offers 2 bedrooms and 2 full baths with a spacious, light-filled layout enhanced by vaulted ceilings and seamless indoor-outdoor flow. The inviting living area features a cozy fireplace and opens to a private yard with a serene garden setting, covered patio, and multiple sitting areas—creating the perfect space to relax or entertain. It feels like your own tranquil, peaceful retreat away from the hustle of everyday life. With no rear neighbors, this home offers exceptional privacy and lives like a single-family home.Additional highlights include stylish vinyl flooring, central heat and A/C, sleek bathrooms, indoor laundry, and a spacious 2-car garage. A charming entry deck welcomes you home, adding to the overall appeal. Located in the highly sought-after Casa Hills community with reasonable HOA dues, just moments from Francesca Terrace Park, shopping, dining, and easy access to I-780, I-680, public transit, and ferry service to San Francisco.








































