Listing provided courtesy of Mary Jane Spangenberg of Equity Union. Last updated 2026-04-23 08:20:48.000000. Listing information © 2026 CRMLS.
Asking Price: $1,050,000
28886 West Hills, Valencia CA 91354
Community: VLWH - Valencia West Hills
Status: Active
This Single Family Residence property was built in 2015 and is priced at $1,050,000. Please see the additional details below.
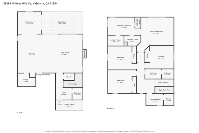
Panoramic Sunsets in Valencia ...Discover this breathtaking 4-bedroom, 3-bath home within the exclusive gates of West Hills in Valencia. This home offers a rare, unobstructed view with no rear neighbors—the ultimate backdrop for sunsets and entertaining.
The expansive open floor plan flows effortlessly from the great room to the outdoors. A chef’s kitchen serves as the centerpiece, featuring an oversized eat-in island, walk in pantry and a seamless transition to the family room’s cozy fireplace and separate dining area.
Upstairs, the primary suite is a sanctuary of its own, boasting panoramic views, two walk-in closets, soaking tub and dual sinks with a sit-down vanity. Three additional spacious bedrooms and a convenient laundry room with linen closet and sink is very convenient. This home also includes a solar system, 2.5 car garage with storage, tankless water heater and energy efficient appliances. Don’t miss your chance to own this beautiful home with breathtaking views. Ideally situated within walking distance to West Creek Academy, Rio Norte, local parks, three community pools, shopping and dining.













































