Listing provided courtesy of Todd Myatt of Century 21 Masters. Last updated 2026-04-23 08:20:48.000000. Listing information © 2026 CRMLS.
Asking Price: $429,489
17858 Kinley, Hesperia CA 92345
Community: HSP - Hesperia
Status: Pending
This Single Family Residence property was built in 2026 and is priced at $429,489. Please see the additional details below.
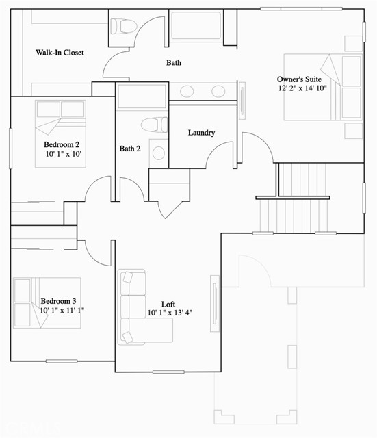
NEW CONSTRUCTION! Ready for Quick Move-in! This new two-story home offers ample space to live and grow. The first floor is host to an open-concept floorplan shared between the kitchen, living and dining areas for seamless entertaining and multitasking. All three bedrooms are located upstairs near a versatile loft, including the luxurious owner’s suite with a full bathroom and walk-in closet.
Journey brings new single-family homes to the Silverwood masterplan, coming soon to Hesperia, CA. Residents will have access to all available amenities within the masterplan, including a relaxing swimming pool, sport courts and much more. There are ample opportunities for local entertainment and recreation, including boating on Silverwood Lake or playing the courses at the Hesperia Golf and Country Club.



























