Listing provided courtesy of Elizabeth Marquart of Estate Properties. Last updated 2026-04-14 08:16:20.000000. Listing information © 2026 CRMLS.
Asking Price: $1,575,000
10 Baymare, Bell Canyon CA 91307
Community: BC - Bell Canyon
Status: Active
This Single Family Residence property was built in 1980 and is priced at $1,575,000. Please see the additional details below.
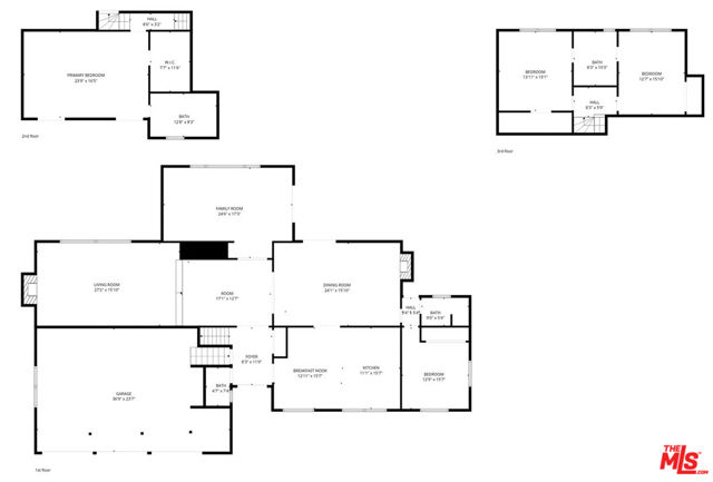
Beautifully situated within the prestigious, guard-gated community of Bell Canyon, this exceptional residence offers refined living with stunning natural surroundings. The home features a charming front porch with a pergola and a dramatic entryway leading to a light-filled interior with wide plank hardwood floors. The thoughtfully designed floor plan includes a step-down living room with a fireplace, a vaulted-ceiling den showcasing serene hill views, and an oversized formal dining room with seamless access to the backyard for effortless indoor-outdoor entertaining. The expansive, updated chef's kitchen is both stylish and functional, complete with stainless steel appliances, a large center island, and abundant storage.A desirable first-floor bedroom with a private entrance and a bathroom, offers ideal flexibility for guests or a sophisticated home office. Upstairs, the luxurious primary suite is a true retreat, featuring a spacious sitting area, walk-in closet, and an updated spa-inspired bathroom. A generous private balcony captures breathtaking mountain views. On the top level, two additional guest bedrooms share a well-appointed Jack and Jill bathroom. Additional highlights include a three-car direct entry garage and a dedicated laundry area. The entertainer's backyard is designed for year-round enjoyment, featuring a solid covered patio and a built-in BBQ area - perfect for weekend gatherings and celebrations under the California sky. Residents of Bell Canyon enjoy a resort-style lifestyle with exclusive amenities including tennis courts, an equestrian center, a fitness center, and miles of scenic hiking and riding trails. This community is also complemented by access to the highly acclaimed Las Virgenes School District. This is a phenomenal opportunity to own a home that combines elegance, comfort, and lifestyle.


























































