Listing provided courtesy of Daniel Choi of Coldwell Banker Realty. Last updated 2026-04-22 08:18:05.000000. Listing information © 2026 CRMLS.
Asking Price: $2,499,999
510 Laguna, Fullerton CA 92835
Community: 83 - Fullerton
Status: Active
This Single Family Residence property was built in 1958 and is priced at $2,499,999. Please see the additional details below.
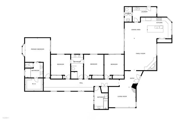
Experience this beautifully reimagined single-level home in the highly desirable community of Sunny Hills Estates, set on a sprawling lot of over half an acre. Showcasing a newly remodeled interior, this home offers 4 bedrooms, 3.5 bathrooms, and a rare RV garage with epoxy flooring—elevating everyday living into a true lifestyle experience. Upon entry, you’re welcomed by a formal foyer that leads to a spacious living room with a fireplace and picturesque views of the expansive side yard. Designed for both entertaining and daily living, the family room—also featuring a fireplace with stunning tilework—flows seamlessly into the kitchen and dining area, creating an inviting space to gather with family and friends. The chef’s kitchen is a true centerpiece, complete with an oversized quartz island, Sub-Zero refrigerator, KitchenAid double oven, Wolf and Viking range, and Bosch dishwasher. Convenience is key with a nearby dedicated laundry room featuring custom built-ins and a large sink, along with an adjacent powder bath. Down the hallway, custom built-in desks with butcher block countertops provide a functional workspace, leading to two guest bedrooms connected by a beautifully remodeled Jack-and-Jill bathroom with dual sinks, designer hardware, and elegant tilework. The primary suite is privately situated with easy access to the backyard and features a newly remodeled bathroom and a walk-in closet thoughtfully redesigned by California Closets. A fourth guest bedroom completes the interior, offering a flexible layout ideal for multigenerational living. Step outside to your own private oasis, where a large patio framed by the home creates the perfect setting for al fresco dining and entertaining. Enjoy a wraparound putting green, a greenhouse with a drip irrigation system, and a generously sized, newly resurfaced pool that is fenced for added safety. Enhancing both comfort and value, the home also includes new dual-pane windows and sliders, a new gas line for the pool, roof replacement, custom Hunter Douglas window treatments, and fresh paint throughout. Ideally located near top-rated schools, Laguna Lake, West Coyote Hills, and equestrian centers, this home offers the refined lifestyle expected in one of Fullerton’s most established neighborhoods.



















































